Dachausbau Lederergasse
Triendl und Fessler Architekten ZT OG
Status: Fertiggestellt 2015
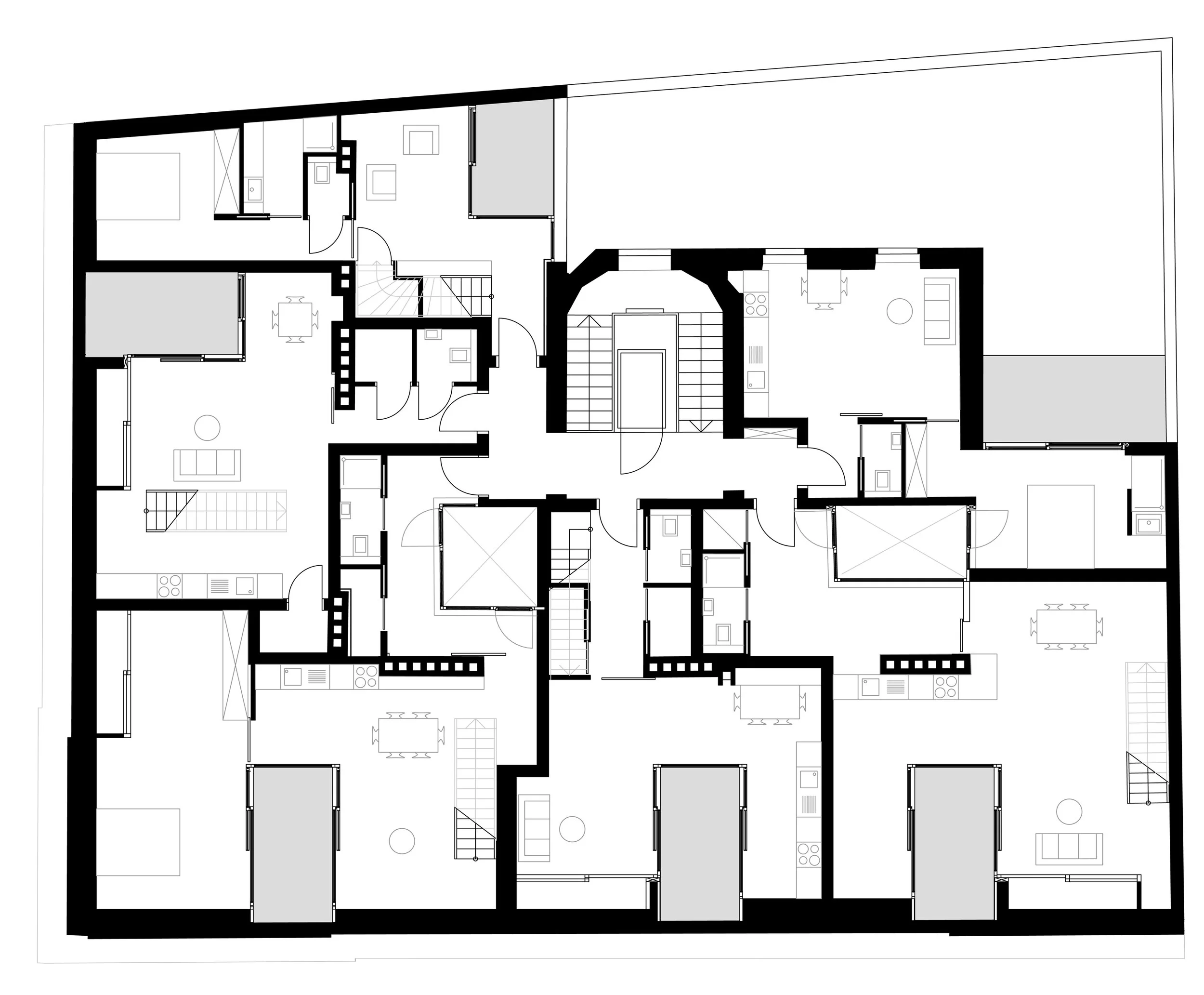
Neben den technischen Vorgaben und der spezifischen Gebäudestruktur des gründerzeitlichen Bestandshauses, bildet auch der enge Kostenrahmen ein strenges Korsett für diesen Dachausbau. Die Grundidee für den Entwurf ist es, typische Raumqualitäten eines Dachraumes neu zu interpretieren. Aufgrund der beschränkten Zugangsmöglichkeiten und den relativ kleinen Wohnungsgrößen, wurden die Wohnungen als zonierter “Einraum” über zwei Ebenen konzipiert. Großzügige Lufträume interpretieren den Dachraum neu und bieten vielfältige räumliche Beziehungen innerhalb jeder Wohneinheit. Einschnitte, Gaupen und die darunterliegende Verglasung werden als zusammenhängendes Element strukturell und optisch in das Dach integriert. Straßenseitig eingeschnittene Terrassen, Treppen und die räumlichen Vorgaben des Bestandes (Kamine, Feuerwände etc.) strukturieren die einzelnen Wohnungen und sorgen für individuelle Wohnqualitäten in jeder Einheit. Vom öffentlichen Eingangsgeschoss nach oben in die private Galerieebene organisieren sich die Nutzungen innerhalb jeder Einheit selbsterklärend.
Im Obergeschoss bieten “Schlafgaupen” spannende Blicke in den Nachthimmel, während die privaten Nassräume inkl. Freiluftdusche jeweils den südseitigen Terrassen Richtung Innenhof zugeordnet sind. Geschuppte Metallbänder betonen die Horizontalität des Daches und werden in den verglasten Bereichen als Lamelle aufgebrochen. In den Gaupen übernehmen die Lamellen den Sonnen- bzw. Sichtschutz.
Ort: Eckgebäude Lederergasse / Laudongasse, 1080 Wien
Auftraggeber: privat
Zeitraum: 2011 - 2015
NNFL: 388m²
Erdgeschoss
Dachgeschoss
Galeriegeschoss
Fassadenabwicklung
 
                         
          
        
               
          
        
               
          
        
               
          
        
               
          
        
               
          
        
               
          
        
               
          
        
              